Posted in Buildings on 14 Jun 2011 at 12:51 pm
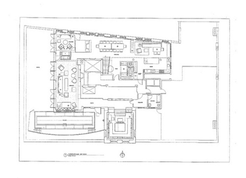
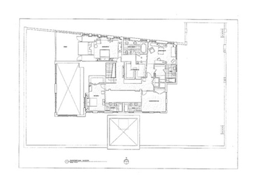
If you had $22 Million Dollars to spare then this is the Penthouse in New York City that you should get. There is something that I really like about Duplexes, they feel really spacious, especially on top of buildings such as these. This property has taken everything into account from a spacious library above the living room to the large pool in the terrace area. I’m a fan of the all steel Kitchen but the couch area is a nice break from the normal kitchen and its refreshing to see such a large Dining Room Table, means you can entertain more people at home. My favorite part is the library above the living room, it seems like you can do a lot with it. And this building has a beautiful view from every corner.

Comprised of 5 corner Bedrooms with 5½ ensuite bathrooms, this duplex located in the Dietz Lantern Building in Tribeca, New York City is nothing less but spectacular. The apartment occupies the building’s top two floors and features plenty of terraces, 50 windows and an amazing roof-top pool with plenty of space for entertainment.
Link: Freshhome












